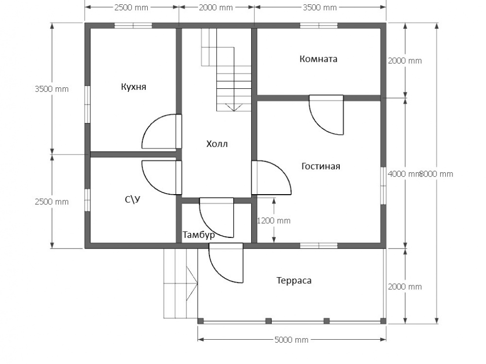
Проект Д-145. Дом из сухого бруса 8х8 м.

Сообщение об ошибке

  • Notice: Trying to get property of non-object в функции am_gal_panels_pane_content_alter() (строка 168 в файле /var/www/zodchestvo/data/www/zodchestvo53.ru/sites/all/modules/am_gal/am_gal.module).
  • Notice: Trying to get property of non-object в функции am_gal_panels_pane_content_alter() (строка 168 в файле /var/www/zodchestvo/data/www/zodchestvo53.ru/sites/all/modules/am_gal/am_gal.module).
  • Notice: Trying to get property of non-object в функции am_gal_panels_pane_content_alter() (строка 168 в файле /var/www/zodchestvo/data/www/zodchestvo53.ru/sites/all/modules/am_gal/am_gal.module).
  • Notice: Trying to get property of non-object в функции am_gal_panels_pane_content_alter() (строка 168 в файле /var/www/zodchestvo/data/www/zodchestvo53.ru/sites/all/modules/am_gal/am_gal.module).
Размер
8х8
Этажность
с мансардой
Комплектация «Под ключ»
Сухой профилированный брус 150×150
По запросу
Комплектация «Под ключ»
Сухой профилированный брус 150×200
По запросу
Вы можете бесплатно изменить планировку у проекта так, как удобно именно вам. Хотите — уберите лишнюю стену или добавьте новую, поменяйте назначение комнат или добавьте больше окон для света. Наши специалисты помогут превратить ваши идеи в готовый индивидуальный проект. Свяжитесь с нами чтобы доработать проект под ваши пожелания.
Описание комплектаций
Обвязка двойная 150×150 (брус камерной сушки) 150×200 (брус камерной сушки)
Высота 1 этажа 18 венцов — 2.35 +/- 5 см, брус камерной сушки
Высота 2 этажа (мансарды) 2.30
Толщина стен 132×140 (брус камерной сушки) 132×190 (брус камерной сушки)
Утеплитель между венцами Льноджутовое полотно
Лаги 50×150 через каждые 60 см 40×200 через каждые 60 см
Внутренние перегородки 92×140 (брус камерной сушки)
Черновой пол ОСБ-9 мм. Швы и стыки пропенены
Чистовой пол Шпунтованная доска 36 мм. (количество этажей согласно проекту)
Потолок ЕвроВагонка 12.5 мм класса В (количество этажей согласно проекту)
Межэтажное перекрытие 40×150, шаг 60 см, (брус камерной сушки) 40×200, шаг 60 см, (брус камерной сушки)
Стропильная система 40×150, шаг 60 см, (брус камерной сушки) 40×150, шаг 60 см, (брус камерной сушки)
Выгородка комнаты 2 этажа (если есть в проекте) 40×150, шаг 60 см, (брус камерной сушки) 40×150, шаг 60 см, (брус камерной сушки)
Обрешетка Обрезная доска камерной сушки 20×100, шаг 20-25 см.
Мансарда, (стены) Сухая Евровагонка 12,5 мм класса В
Внутренние стены и перегородки 2 этажа (мансарды) Каркасно — щитовые 40×100 камерной сушки
Фронтоны Обшиваются сухой имитацией бруса 16×140
Высота фронтона Одноэтажный дом 1,50-2,0 м. Двухэтажный дом 3,50 м.
Толщина утепления Полы — 150 мм, потолки — 150 мм (Кнауф рулонный или аналоги) Полы — 150 мм, потолки — 150 мм (Кнауф рулонный или аналоги)
Толщина утепления 2 этажа (мансарды) 150 мм, плиты 150 мм, плиты
Толщина утепления перегородок 2 этажа (мансарды) 100 мм, плиты 100 мм, плиты
Пароизоляция Полы, потолок, мансардный этаж — Наноизол Про (или его аналоги) класса В (с проклейкой скотчем)
Ветрозащита фронтонов Наноизол Про (или его аналоги) класса А
Гидро — ветрозащитная мембраны кровли Наноизол Про (или его аналоги) АМ или SD
Кровля Ондулин (красный, зеленый, коричневый — на выбор)
Окна ПВХ Двухкамерные стеклопакеты с установкой в деревянные коробки (размеры согласно проекту)
Входная дверь Металлическая, производство Россия
Двери Без межкомнатных дверей, только проемы
Лестница Одномаршевая или двухмаршевая, с точеным балясинами, стартовыми столбами и перилами (согласно проекту)
Плинтус Входит в стоимость
Фундамент Не входит в стоимость договора
Сборка дома На деревянные березовые нагеля, внутренняя отделка на оцинкованные гвозди
Доставка До МКАД и КАД — входит в стоимость. Перепробег — 200 руб./км.

Свайно-винтовой фундамент.
Расчет свай по проекту дома или бани.
Подробнее о фундаментах

По запросу

Дополнительный венец из бруса 100х150 мм, за 1 пог. метр.
Дополнительный венец из бруса 150х150 мм, за 1 пог. метр.
Дополнительный венец из бруса 150х200 мм, за 1 пог. метр.

250 руб.
350 руб.
400 руб.

Дополнительная перегородка из проф. бруса 150х100 мм.
Дополнительная перегородка из проф. бруса 150х150 мм.
Дополнительная перегородка из проф. бруса 150х200 мм.

1500 руб. кв.м
1800 руб. кв.м
2100 руб. кв.м

Монтаж углов «в тёплый угол»
Подробнее о видах углов

6000 руб.
за 1 угол

Сборка сруба на деревянные нагеля
Подробнее о деревянных нагелях

60 руб.
за 1 пог. метр

Выпиливание роек для рам, 1 проем
Выпиливание роек для дверей, 1 проем

2000 руб.
2500 руб.

Ройки на окна на металлический уголок, 1 проем
Ройки на двери на металлический уголок, 1 проем

2500 руб.
3000 руб.

Дополнительное деревянное окно 1х1,2 м.,
с установкой

4500 руб.

Дополнительное деревянное окно 1,5х1,2 м.,
с 1 открывающейся створкой (с установкой)

7000 руб.

Дополнительное деревянное окно 1,5х1,2 м.,
с 2 открывающимися створками (с установкой)

8000 руб.

Оконный блок 0,5х0,5 м.

2500 руб.

Замена окон на пластиковые 0,6х0,6 м.
с поворотно-откидной фурнитурой, с установкой

4500 руб./шт. (однокамерное)
5000 руб./шт. (двухкамерное)

Замена окон на пластиковые 0,9х1,2 м.
с поворотно-откидной фурнитурой, с установкой

9000 руб./шт. (однокамерное)
9500 руб./шт. (двухкамерное)

Замена окон на пластиковые 1х1,2 м.
с поворотно-откидной фурнитурой, с установкой

9500 руб./шт. (однокамерное)
10000 руб./шт. (двухкамерное)

Замена окон на пластиковые 1,5х1,2 м.
с поворотно-откидной фурнитурой, с установкой

11000 руб./шт. (однокамерное)
12000 руб./шт. (двухкамерное)

Замена половой доски на шпунтованную, тощиной 36 мм.

400 руб.
за кв. м.

Дополнительное утепление - 50 мм

150 руб.
за кв. м.

Дверь банная стеклянная

12500 руб.

Металлическая входная дверь (Россия) с установкой

15 000 руб

Дополнительная парогидроизоляция (изоспан)

140 руб.
за 1 кв.м.

Контробрешетка под металлочерепицу

Обсчет
по проекту

Замена ондулина на металлочерепицу, с работой. Цвет на выбор

По
запросу

Обработка стен Пинотексом заказчика

250 руб.
за 1 кв.м.

Двойная обвязка из бруса 100х150
Двойная обвязка из бруса 150х150
Двойная обвязка из бруса 150х200

150 руб. п.м.
200 руб. п.м.
250 руб. п.м.

Фронтоны из проф. бруса 100х150, за 1 погонный метр
Фронтоны из проф. бруса 150х150, за 1 погонный метр
Фронтоны из проф. бруса 150х200, за 1 погонный метр

250 руб.
350 руб.
450 руб.

Матица для усиления потолочных балок 100х150
Матица для усиления потолочных балок 150х150
Матица для усиления потолочных балок 150х200

250 руб. п.м.
300 руб. п.м.
450 руб. п.м.

Замена прямой крыши на ломанную

40000 руб.

Отделка фронтонов и стен блокхаусом.
Расчет по проекту

1800 р. кв.м.

Обработка огнебиозащитой (нижний венец, лаги, черновой пол)

8000 руб.

Крыльцо с балясинами 1х1,5 м.

18000 руб.

Терраса открытого типа 6х2

96000 руб.

Банные печи

Открыть

Набор для бани: стол 1,5х0,7 и 2 скамьи 1,5х0,35

9800 руб.

Туалет (каркасно-щитовой) 1х1,2 м. + 4 блока

15000 руб.

Бытовка (каркасно-щитовая) 2х3 м. для проживания бригады + 4 блока. Остается у заказчика

30000 руб.

Козырёк над входом из полипропилена

10000 руб.

Аренда генератора (бензин заказчика)

20000 руб.

Доставка до МКАД и КАД входят в стоимость проекта. Сверх лимита.

200 руб.
за 1 км.

Бесплатный Расчет
вашего проекта
Если вы не смогли найти подходящий проект на нашем сайте, или у вас есть свой готовый проект или эскиз, Вы можете прислать его нам на бесплатный расчет стоимости строительства.

Заказ проекта

Оформить заказ Вы можете по телефону +7 (921) 202-42-37 
или заполнив форму ниже:

Бесплатный расчет проекта

Если Вы загружаете свой проект, не забудьте нажать
кнопку «Закачать», иначе мы не получим файл с проектом.

Максимальный размер файла: 32 МБ.
Разрешённые типы файлов: gif jpg jpeg png bmp eps tif pict psd rtf pdf doc xls xlsx.
Максимальный размер файла: 20 МБ.
Разрешённые типы файлов: gif jpg jpeg png txt rtf html pdf doc docx ppt pptx xls xlsx xml.

Консультация

Наш сайт использует куки. Продолжая им пользоваться, вы соглашаетесь на обработку персональных данных в соответствии с политикой конфиденциальности.