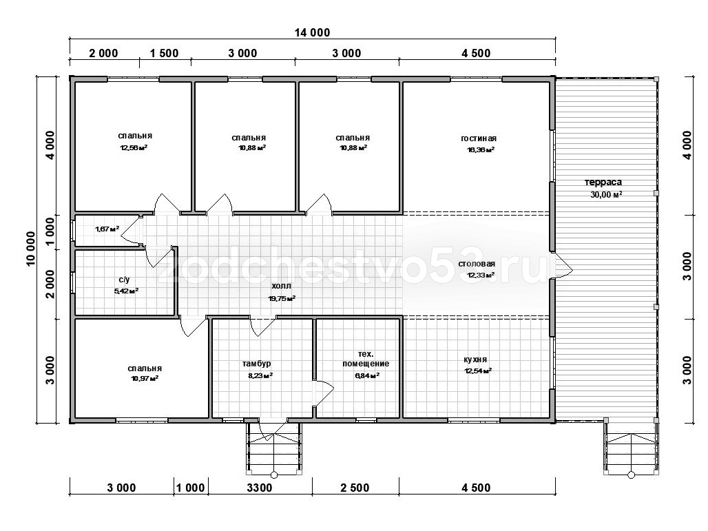
Проект Д-15. Дом из сухого бруса 10х14 м.

Сообщение об ошибке

  • Notice: Use of undefined constant CSS_LIBRARY - assumed 'CSS_LIBRARY' в функции field_formatter_image_gallery_attach_assets() (строка 231 в файле /var/www/zodchestvo/data/www/zodchestvo53.ru/sites/all/modules/field_formatter_image_gallery/field_formatter_image_gallery.module).
  • Notice: Use of undefined constant CSS_LIBRARY - assumed 'CSS_LIBRARY' в функции field_formatter_image_gallery_attach_assets() (строка 236 в файле /var/www/zodchestvo/data/www/zodchestvo53.ru/sites/all/modules/field_formatter_image_gallery/field_formatter_image_gallery.module).
  • Notice: Use of undefined constant CSS_LIBRARY - assumed 'CSS_LIBRARY' в функции field_formatter_image_gallery_attach_assets() (строка 238 в файле /var/www/zodchestvo/data/www/zodchestvo53.ru/sites/all/modules/field_formatter_image_gallery/field_formatter_image_gallery.module).
Размер
10х14 м.
Этажность
одноэтажный
Комплектация «Под ключ»
Сухой профилированный брус 150×150
3 705 000 руб.
Комплектация «Под ключ»
Сухой профилированный брус 150×200
4 150 000 руб.
Вы можете бесплатно изменить планировку у проекта так, как удобно именно вам. Хотите — уберите лишнюю стену или добавьте новую, поменяйте назначение комнат или добавьте больше окон для света. Наши специалисты помогут превратить ваши идеи в готовый индивидуальный проект. Свяжитесь с нами чтобы доработать проект под ваши пожелания.
Описание комплектаций
  БРУС 150×150 БРУС 150×200
Обвязка двойная 150×150 (брус камерной сушки) 150×200 (брус камерной сушки)
Высота 1 этажа 18 венцов — 2.35 +/- 5 см, брус камерной сушки
Высота 2 этажа (мансарды) 2.30
Толщина стен 132×140 (брус камерной сушки) 132×190 (брус камерной сушки)
Утеплитель между венцами Льноджутовое полотно
Лаги 50×150 через каждые 60 см 40×200 через каждые 60 см
Внутренние перегородки 92×140 (брус камерной сушки)
Черновой пол ОСБ-9 мм. Швы и стыки пропенены
Чистовой пол Шпунтованная доска 36 мм. (количество этажей согласно проекту)
Потолок ЕвроВагонка 12.5 мм класса В (количество этажей согласно проекту)
Межэтажное перекрытие 40×150, шаг 60 см, (брус камерной сушки) 40×200, шаг 60 см, (брус камерной сушки)
Стропильная система 40×150, шаг 60 см, (брус камерной сушки) 40×150, шаг 60 см, (брус камерной сушки)
Выгородка комнаты 2 этажа (если есть в проекте) 40×150, шаг 60 см, (брус камерной сушки) 40×150, шаг 60 см, (брус камерной сушки)
Обрешетка Обрезная доска камерной сушки 20×100, шаг 20-25 см.
Мансарда, (стены) Сухая Евровагонка 12,5 мм класса В
Перегородки 2 этажа
40×100 шаг 60 см (Камерной сушки) обшиваются Евровагонкой с 2-х сторон
 
Фронтоны Обшиваются сухой имитацией бруса 16×140
Высота фронтона Одноэтажный дом 1,50-2,0 м. Двухэтажный дом 3,50 м.
Толщина утепления Полы — 150 мм, потолки — 150 мм (Кнауф рулонный или аналоги) Полы — 150 мм, потолки — 150 мм (Кнауф рулонный или аналоги)
Толщина утепления 2 этажа (мансарды) 150 мм, плиты 150 мм, плиты
Толщина утепления перегородок 2 этажа (мансарды) 100 мм, плиты 100 мм, плиты
Пароизоляция Полы, потолок, мансардный этаж — Наноизол Про (или его аналоги) класса В (с проклейкой скотчем)
Ветрозащита фронтонов Наноизол Про (или его аналоги) класса А
Гидро — ветрозащитная мембраны кровли Наноизол Про (или его аналоги) АМ или SD
Кровля Ондулин (красный, зеленый, коричневый — на выбор)
Окна ПВХ Двухкамерные стеклопакеты с установкой в деревянные коробки (размеры согласно проекту)
Входная дверь Металлическая, производство Россия
Двери Без межкомнатных дверей, только проемы
Поднебесники , лобовые и углы ЕвроВагонка 12.5 мм класса В
Лестница в комплекте( тетива,ступени) Одномаршевая или двухмаршевая, с точеным балясинами, стартовыми столбами и перилами (согласно проекту)
Плинтус Входит в стоимость
Контр-рейка 20×40 Фасад,стены,потолки и 2 этаж( кроме перегородок)
Фундамент Не входит в стоимость договора
Сборка дома На деревянные березовые нагеля, внутренняя отделка на оцинкованные гвозди
Доставка До МКАД и КАД — входит в стоимость. Перепробег — 200 руб./км.
Свайно-винтовой фундамент. Расчет свай по проекту дома или бани. По запросу
Дополнительный венец из бруса 150×150 мм, за 1 пог. метр. По запросу
Дополнительный венец из бруса 150×200 мм, за 1 пог. метр. По запросу
Монтаж углов «в тёплый угол» В подарок
Сборка сруба на деревянные нагеля В подарок
Замена половой доски на КвикДек По запросу
Дверь банная стеклянная По запросу
Металлическая входная дверь (Россия) с установкой По запросу
Металлическая входная дверь с терморазрывом (Россия)с установкой По запросу
ПВХ дверь, двухкамерная входная с личиной По запросу
Замена ондулина на металлочерепицу, с работой. Цвет на выбор По запросу
Установка Водосточной системы Дёке Премиум По запросу
Установка Снегозадержателей Борг По запросу
Банные печи Открыть
Туалет (каркасно-щитовой) 1×1,2 м. + 4 блока По запросу
Бытовка (каркасно-щитовая) 2×3 м. для проживания бригады + 4 блока. Остается у заказчика По запросу
Аренда генератора (бензин заказчика) По запросу
Доставка 450 км входит в стоимость проекта .Перепробег . Перепробег — 200 руб. за 1 км.
Бесплатный Расчет
вашего проекта
Если вы не смогли найти подходящий проект на нашем сайте, или у вас есть свой готовый проект или эскиз, Вы можете прислать его нам на бесплатный расчет стоимости строительства.

Заказ проекта

Оформить заказ Вы можете по телефону +7 (921) 202-42-37 
или заполнив форму ниже:

Бесплатный расчет проекта

Если Вы загружаете свой проект, не забудьте нажать кнопку «Закачать», иначе мы не получим файл с проектом.
Максимальный размер файла: 32 МБ.
Разрешённые типы файлов: gif jpg jpeg png bmp eps tif pict psd rtf pdf doc xls xlsx.
Максимальный размер файла: 20 МБ.
Разрешённые типы файлов: gif jpg jpeg png txt rtf html pdf doc docx ppt pptx xls xlsx xml.

Консультация

Наш сайт использует куки. Продолжая им пользоваться, вы соглашаетесь на обработку персональных данных в соответствии с политикой конфиденциальности.